Hinged system with groove 16 destined for the industrial production of windows, doors and balconies. In order to reduce the manufacturing period, this new series offers the possibility of using pre-assembled gaskets, assembling cleats and a central floating mullion with a two piece hidden sash, which allows the glazing of double-sash windows on site. COR 70 Evolution is presented in a version of hidden or half-hidden sash with monoblock frames, in straight cut or perimetral, aiming at facilitating the on-site installation.
Possibilities
» Security hardware
» Concealed hingues
» Concealed handle
Glazing
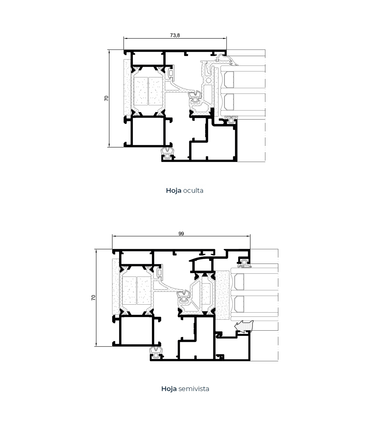
Hidden sash 36 mm
Half hidden sash 63 mm
Opening possibilities
Inward Opening
Side hung
Tilt & turn
Tilt only
Sightlines
Hidden sash
Frame 70 – 232 mm
Sash 72,5 – 80,5 mm
Half hidden sash
Frame 70 – 232 mm
Sash 80,5 – 88,5 mm
Maximum Sash Dimensions
Hidden sash
Width (L) 1000 mm
Height (H) 1700 mm
Half hidden sash
Width (L) 1500 mm
Height (H) 2600 mm
Maximum Sash Weight
150 Kg
Consult maximum weight and dimensions
according to typologies
Finishes
Possibility of bicolour systems
Colour powder coating (RAL, mottled and rough)
Wood effect powder coating
Anti-bacterial powder coating
Anodised





