Elegant design with straight aestheticin which the sash is concealed behind the frame, thus maximising the glazed surface and the entry of light. Added to all of this is the great thermal and acoustic performance prompted by the 45 mm thermal break and a glazing capacity of up to 51 mm that allows the installation of triple glazing.
Possibilities
» Security hardware
» Concealed hinges
» Concealed drainage
» Concealed handle
Glazing
Max. 51 mm
Min. 36 mm
Opening possibilities
Inward opening
Side hung
Tilt & turn
Tilt only
Parallel Sliding
Sightlines
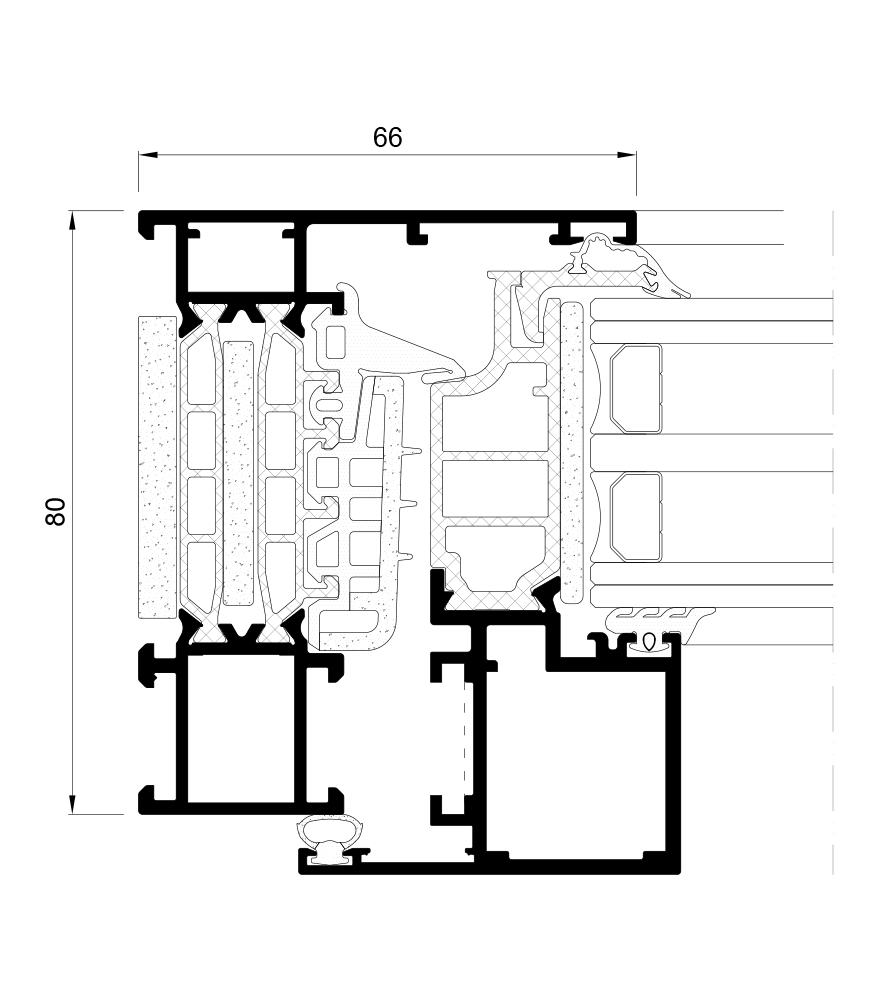
Frame 80 mm
Sash 80 mm
Profile thickness
Window 1.9 mm
Polyamide strip length
45 mm
Maximum sash dimensions
Standard Solution
Width (L) 1,300 mm
Height (H) 2,400 mm
HD Hinges (Side Hung)
Width (L) 1,200 mm
Height (H) 3,500 mm
Maximum sash weight
160 kg
Consult maximum weight and dimensions according to typologies
Finishes
Possibility of dual colour systems
Colour powder coating (RAL, mottled and rough)
Wood effect powder coating
Anti-bacterial powder coating
Anodised






