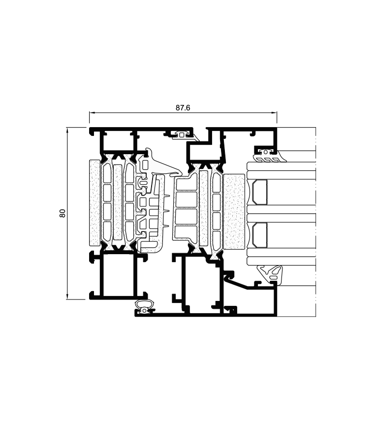
Cor 80 Industrial TB

With an 80 mm frame depth, the COR 80 Industrial series responds to the most severe climatic requirements thanks to its thermal break with 45 mm tubular polyamide strips and the incorporation of polyolefin both around the glass and between the frame and sash.

Possibilities
» Security hardware
» Concealed hinges
» Concealed drainage
» Blind integrated glazing bead

Glazing
Max. 73 mm
Min. 16 mm

Opening possibilities

Inward opening
Side hung
Tilt & turn
Parallel Sliding
Tilt only

Outward opening
Side hung
Top hung

Sightlines
Frame 80 mm
Sash 88 mm

Profile thickness
Window 1.5 mm
Balcony 1.6 mm

Polyamide strip length
45 mm

Maximum sash dimensions
Width (L) 1,500 mm
Height (H) 2,600 mm

Maximum sash weight
160 kg

Consult maximum weight and dimensions according to typologies.

Aesthetic possibilities
Sash: Straight
Bead: Straight or curved

Finishes
Possibility of dual colour systems
Colour powder coating (RAL, mottled and rough)
Wood effect powder coating
Anti-bacterial powder coating
Anodised