Thermally broken minimalist sliding system that provides maximum luminosity with a minimal aluminium interlock profile. It has an elegant design only 20 mm sightline and offers the possibility of an inlaid closing system and of hiding the frame along the perimeter. Possibility of locking system in the interlock, thus allowing the concealment of the sashes in the frame from a frontal view. Possibility of embedded locking system which facilitates the sashes crossing.
Possibilities
» Accessibility
Glazing
Max. 30 mm
Min. 26 mm
Opening possibilities
Sliding
Possibility of 1, 2 or 3 rails
Possibility of inner and outer corner at 90º without mullion
Pocket possibility
Sections
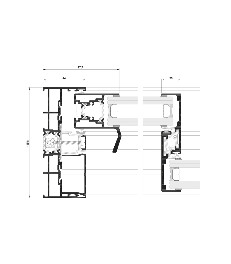
Frame
116 mm
182 mm
3 rails
Sash
37 mm
Profile thickness
Door 1.7 mm
Polyamide strip length
From 16 to 24 mm
Maximum dimensions/sash
Width (L) = 2,500 mm
Height (H) = 3,000 mm
Maximum weight/sash
320 kg
Please consult regarding maximum weight and dimensions for other opening types
Finishes
Possibility of dual colour systems
Colour powder coating (RAL, mottled and rough)
Wood effect powder coating
Anti-bacterial powder coating
Anodised









