Fire resistance category EI260
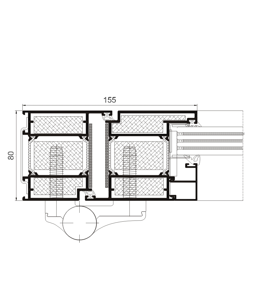
Coplanar profiles with straight lines of 80 mm of section
Retardant insulation materials that do not combust in the profile chambers, as well as intumescentant gaskets which have a expansion effect and bio-soluble paper in the glazing area
Polyamide strip length 35 mm
Possibility of joining with fixed areas, it also incorporates special opening hardware with anti-panic function, automatic door closing system and handles/hinges officially approved in the fire extinguishing sector
Maximum glazing
48 mm
Opening possibilities
Open Inwards:
Side hung 1 or 2 sashes
Open Out:
Side hung 1 or 2 sashes
Secions
Frame – 80 mm / Sash – 80 mm
Profile thickness
Door 2.2 mm
Polyamide strip length
35 mm
Maximum dimensions/sash
Width (L) = 1450 mm
Height (H) = 2600 mm
Maximum weight/sash
240 kg
Please consult regarding maximum weight and dimensions according to types
Finishes
Possibility of dual colour systems
Colour powder coating (RAL, mottled and rough)
Wood effect powder coating
Anti-bacterial powder coating
Anodised






