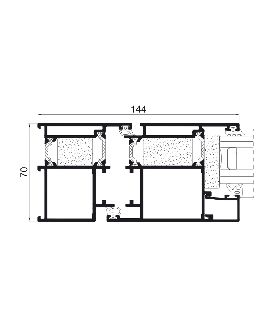
Flush entrance pedestrian door system with 70 mm of frame depth that guarantees high thermal and acoustic insulation.
Possibilities
Concealed Hinges
Accessibility
Automation
Glazing
Max. 64 mm
Min. 15 mm
Opening possibilities
Open In
Side hung 1 or 2 sashes
Open Out
Side hung 1 or 2 sashes
Automatic opening
Internal and external hinged single sash
Sections
Frame – 70 mm
Sash – 70 mm
Profile thickness
Door 2.0 mm
Polyamide strip length
24 mm
Maximum dimensions/sash
Door
Width (L) = 1,800 mm
Height (H) = 3,000 mm
Hidden hinges door
Width (L) = 1,500 mm
Height (H) = 3,000 mm
Maximum weight/sash
220 kg
Please consult regarding maximum weight and dimensions according to types
Finishes
Possibility of dual colour systems
Colour powder coating (RAL, mottled and rough)
Wood effect powder coating
Anti-bacterial powder coating
Anodised






