Wide variety of mullions (from 16 to 230 mm) and transoms (from 22.5 to 205.5 mm) that solve the different aesthetic and constructive needs of the architecture sector
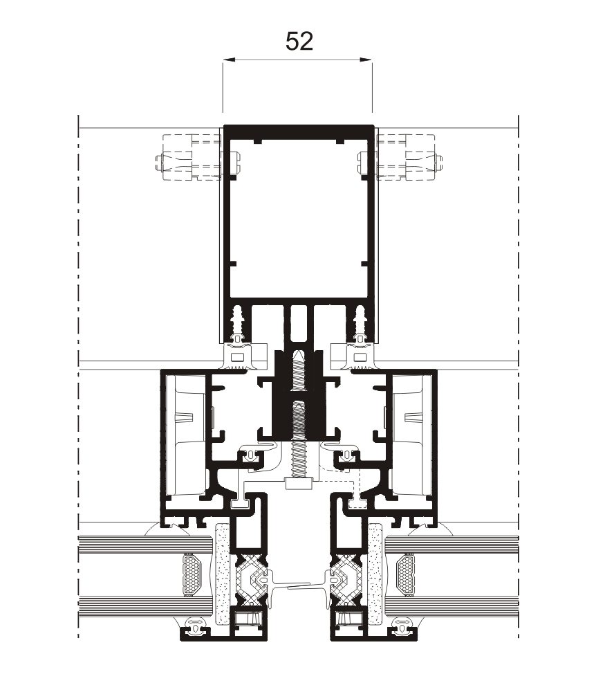
Internal seen section 52 mm
Extensive profile range, their mechanical unions allow for all types of façades to be built (vertically, inclined, 90° corners, corners, polygonal) as well as solving large and heavy glazing modulations
Water tightness elements: drainage pipettes, tear strip gaskets and vulcanized angles
Mechanical union to the aluminum frame. Outside cover profile (embellisher)
This system offers a EPDM gasket system which is installed around the perimeter of each module
Glazing
Maximum glazing 28 mm*
Mínimum glazing 6 mm
*Consult us for greater thicknesses
Opening possibilities
Hidden Top Hung
Sections
Mullion 52 mm
Transom 52 mm
Profile thickness
Mullion 2.1 and 3 mm
Transom 2.1 mm
Polyamide strip length
18 mm
Minimum / Maximum opening dimensions
Min. Width (L) = 500 mm
Min. Height (L) = 650 mm
Max. Width (L) = 2500 mm
Max. Height (H) = 2500 mm
Maximum weight / sash
180 kg
Maximum weight of fixed lights
350 kg
Consult maximum weight and dimensions according to typologies
Finishes
Powder coating / Anodised





