Wide variety of mullions (from 16 to 230 mm) and transoms (from 22.5 to 205.5 mm) that solve the different aesthetic and constructive needs of the architectonic sector
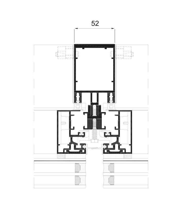
Internal seen section 52 mm
Extensive profile range, their mechanical unions allow for all types of façades to be built (vertically, inclined, 90° corners, corners, polygonal) as well as solving large and heavy glazing modulations
Water tightness elements: drainage pipettes, tear strip gaskets and vulcanized angles
The glass is glued to an aluminium frame, which is glued to the main structure using clips
This system offers the same outside look, whether it is fixed glazing or projecting opening. Only glass finished, with EPDM gaskets
Glazing
Maximum glazing 38 mm*
Mínimum glazing 6 mm
*Consult us for greater thicknesses
Opening possibilities
Hidden Top Hung
Sections
Mullion 52 mm
Transom 52 mm
Profile thickness
Mullion 2.1 and 3 mm
Transom 2.1 mm
Minimum / Maximum opening dimensions
Min. Width (L) = 500 mm
Min. Height (L) = 650 mm
Max. Width (L) = 2500 mm
Max. Height (H) = 2500 mm
Maximum weight / sash
180 kg
Maximum weight of fixed lights
350 kg
Consult maximum weight and dimensions according to typologies
Finishes
Powder coating / Anodised






