Great variety of mullions (from 16 to 230 mm) and transoms (from 22.5 to 205.5 mm) that solve the different aesthetic and constructive needs of any architectonic project
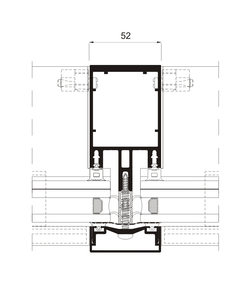
Internal seen section: 52 mm
Extensive profile range, their mechanical unions allow for all types of façades to be built (vertically, inclined, 90° corners, corners, polygonal) as well as solving large and heavy glazing modulations
Water tightness elements: drainage pipettes, tear strip gaskets and vulcanized angles
In order to fix the glass to the supporting profiles, a pressed profile is needed, this profile is screwed to the mullions and transoms, and covered with a embellisher profile (cover profile)
Excellent thermal and acoustic properties
Glazing
Maximum glazing 64 mm
Mínimum glazing 4 mm
*Consult us for greater thicknesses
Opening possibilities
Hidden turn&tilt
Hidden side hung
hidden top hung projecting
Sections
Mullion 52 mm
Transom 52 mm
Profile thickness
Mullion 2.1 and 3 mm
Transom 2.1 mm
Polyamide strip length
6, 12 & 30 mm stackable profiles
Minimum / Maximum opening dimensions
Hidden Top hung
Min. Width (L) = 500 mm
Min. Height (H) = 650 mm
Max. Width (L) = 2500 mm
Max. Height (H) = 2500 mm
Hidden Parallel Projecting
Min. Width (L) = 530 mm
Min. Height (H) = 530 mm
Max. Width (L) = 2000 mm
Min. Height (H) = 3000 mm
Hidden Side Hung / Turn&Tilt
Min. Width (L) = 500 mm
Min. Height (H) = 600 mm
Max. Width (L) = 1400 mm
Min. Height (H) = 1900 mm
Maximum weight / sash
Hidden Top hung 180 kg
Hidden Parallel Projecting 200 kg
Hidden Side Hung / Turn&Tilt 100 kg
Maximum weight of fixed lights
750 kg
Consult maximum weight and dimensions according to typologies
Covers
85 mm deep elliptical cover
H shape cover, 34 mm deep
Rectangular cover: 14, 19 100 & 145 mm deep
Pyramid shape cover, 155 mm deep
Finishes
Powder coating / Anodised






